The Gentry Home, To Be
Determined, Connecticut


Home Features:

1. Security system/ Central Vac.
2. Granite kitchen counter tops
3. Wood floors 1 st carpet 2nd floor &
Ceramic tile
4.Entertainment center bump out (not shown)
equip for 6.1 surround sound and digital
cable with phone jack  for DSL/Broadband
Internet
5. Custom designed Victorian  brick chimney  
6. Large master bed room suite with tray
ceiling
7. Circular driveway (where applicable)
8. Tray ceilings in dining room/ master
bedroom
9. 7" baseboards with upgraded window and
door trim.
Also crown moldings.
10. Antique carriage house garage doors
(not shown)  
11. Stainless steel kitchen appliances
12. Laundry room on 2nd floor.
13. LPI floor joist system with roof trusses.
14. Roughed out for bath room in lower level.
15. Heated Garage
16. Central Air conditioning
Interested in this plan please contact me at
the above link
RENDERING OF FRONT
SECOND FLOOR
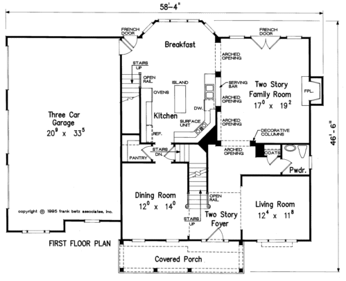
FIRST FLOOR
“Jason  is extremely knowledgeable
at building!. He has made the process
as painless as possible. I  would
never hire anyone else.”
Ray
Colchester, CT.
RENDERING OF REAR